電話をかける(携帯・PHS可)
048-866-7111
「ホームページを見て」とお伝え下さい。
お問い合わせ番号をお伝えください
RHS-602
| 特徴 |
|
|---|---|
| セールスコメント | - |
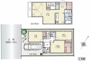
| 採光面 | 東南 | 構造/階数 | 木造/地上2階建 |
|---|---|---|---|
| 建ぺい率 | 60(%) | 容積率 | 200(%) |
| 駐車場 | 有 | 現況/引渡し | 新築/2025年8月下旬 |
| 土地権利 | 所有権 | 私道負担面積 | なし |
| 接道状況 | 接道: 南西 5.19m 公道 | 用途地域 | 第一種住居地域
|
| セットバック | なし | 法令上の制限 | あり:法22条区域、下水道処理区域、高度地区(15m) |
| 地目 | 宅地 | 地勢 | 平坦 |
| 建築確認番号 | 第24UDI1T建04071号 令和6年12月24日 | 都市計画 | 市街化区域 |
| 小学校区 | 栄和小学校:720m | 中学校区 | 土合中学校:980m |
| 取引態様 | 売主 | ||
電話をかける(携帯・PHS可)
048-866-7111
「ホームページを見て」とお伝え下さい。
お問い合わせ番号をお伝えください
RHS-602
| 年利率 | % |
||
|---|---|---|---|
| ボーナス払い | 返済年数 |
|
|
| 頭金 | 直接入力する | 万円 | |

毎月のご返済額 |
ボーナス(×年2回) |
物件価格3,790万円 |
電話でお問い合わせ
株式会社 藤島住宅
|
電話をかける 048-866-7111 ※「ホームページを見て」とお伝えください。 |
お問い合わせ番号をお伝えください RHS-602 |
|---|
プライバシーに配慮した2階リビングには、開放的な勾配天井を採用!